


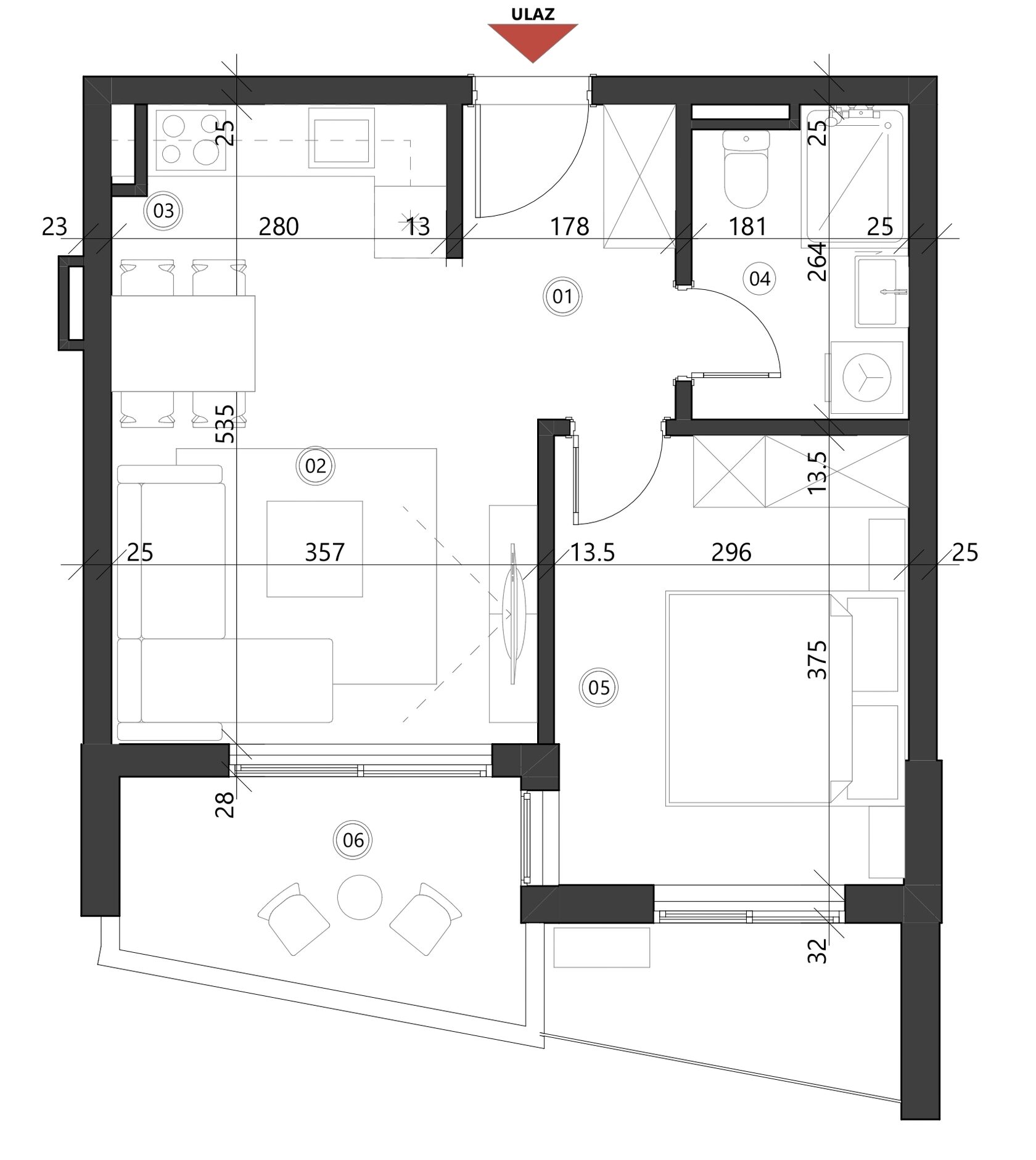
Stan se nalazi na drugom spratu novogradnje u Petrovcu, opština Budva, 300 metara od mora. Stan ima otvoreni dnevni boravak sa kuhinjom i trpezarijom, 1 spavaću sobu, 1 kupatilo i terasu sa pogledom na more. Sam stan ima 38,25m2, dok njegova terasa ima 5,69m2, što ukupno iznosi 43,94m2. Postoji opcija da se kupi garazno mjesto za 15 000e.
Projekat se sastoji od 2 zgrade i bazena ispred.
Projekat se nalazi na jednoj od najboljih lokacija u Petrovcu, koja je povezana sa ostalim delovima grada, ali i magistralnim putem prema Budvi i Baru. Intimnost lokacije ogleda se u njenoj odvojenosti od centra grada.
Dizajnerski akcenat je stavljen na postizanje odgovarajuće orijentacije stanova, kako bi se postigla optimalna sunčeva svetlost tokom cele godine i ispunili zahtevi energetske efikasnosti. Takođe, svaki apartman ima pogled na more ili maslinike i zelenilo u okolini. Najviša opremljenost, uvođenje najsavremenijih sistema i tehnologije gradnje i završni elementi izdvojiće ovaj kompleks kao moderan koncept stanovanja na atraktivnoj lokaciji u Petrovcu.
O zgradi
VISOKI STANDARDI ENERGETSKE EFIKASNOSTI
Zgrade su projektovane prema visokim zahtevima energetske efikasnosti, prilagođene prvenstveno budućim standardima. Vrhunske fasade u kombinaciji sa specijalnim izolacionim materijalima biće sistemska rešenja za toplotnu i zvučnu izolaciju zgrada. Niskoenergetski toplotni gubici su svedeni na najmanji procenat korišćenjem novih sistema prozorskih otvora i lakih zatvora.
ELEMENTI OPREME
Kao završne podne obloge koristiće se parketi autentičnog stila i najkvalitetnije obrade. Unutrašnja vrata i stolarija renoviranih proizvođača. Pločice vrhunskog kvaliteta i modernog dizajna. Kvalitetna sanitarije za kupatilo. Svi završni elementi unutrašnjeg opremanja mogu se birati u direktnoj saradnji sa kupcima, kako bi isporučeni projekat bio u skladu sa stilom i zahtevima budućih zakupaca.
UREĐENJE PODOVA
U parternoj kompoziciji, kao i u sejalicama sa profilisanim podzidima, predviđen je mediteranski autohtoni parter u kome dominiraju biljke otporne na sušu i gaženje, kao i sadnja maslina. Na ovaj način objekat uspešno poštuje originalni arhitektonski stil i time se ulepšava javni prostor.
Sadilice omogućavaju dodatno ozelenjavanje fasade i obogaćivanje vizuelnog identiteta objekta lokalnim vrstama zelenog bilja, poput puzavica. Takođe, objekat je ograđen zidanom ogradom od kamena, koji su istovremeno i potporni zidovi padajućeg terena.
Bazen je integrisan u parcelu na mestu gde su postojali tradicionalni podzidovi, suvozidi, tako da oblik bazena i parterni raspored sugerišu oblik i veličinu suvozida. Zbog nagiba terena, parcela je uređena u prizemlju sa kaskadnom terasom širine 3-5m sa zelenom zavesom na tamponu od 90-120cm za manje zasade (oleandere, pomorandže i dr.)
Get in touch with us today
Donji bulevar bb
Hotel Bracera
81310 Budva
Montenegro




.webp)


.jpeg)
.jpeg)
.jpeg)
.jpeg)
.jpeg)
.jpeg)
.jpeg)
.jpeg)
.jpeg)

.jpeg)
.jpeg)
.jpeg)
.jpeg)
.jpeg)
.jpeg)
.jpeg)
.jpeg)
.jpeg)


