


LOCATION
This villa is located in the peaceful Kotor Municipality, 8 km from the city center. The sea and beach are only 4 km away. Tivat Airport is 3.5 km away, and Podgorica Airport is 70 km away. Surrounded by nature, the villa offers privacy, peace, and tranquility.
ABOUT THE PROJECT
The project is scheduled for completion in the end of 2026 and features modern, sustainable homes with panoramic sea views.
Project benefits include:
- Modern reinforced concrete structure
- Eco-friendly high-quality materials
- Energy-efficient design
- Shockproof panoramic windows
- Customizable layouts
- All homes feature panoramic sea views
The price includes:
- Interior finishing with parquet or ceramic tiles, walls and ceilings painted in your chosen color
- Complete exterior finishing including facade, roof, and windows
- All engineering systems including electrics, sewage, water, boilers, air conditioning in the living room and master bedroom, and underfloor heating in kitchens and bathrooms
- Fully equipped bathrooms with tiles and sanitary ware
- Front terrace, parking, and walkway to the entrance
- Land plot with basic grass and green fencing
-
FLEXIBILITY
Buyers can customize the design and layout of their villa, choose the type of house that suits their needs, and add optional upgrades for the house or outdoor area. Special conditions apply for the first five buyers, including priority in position, pricing, and payment options.
OPTIONAL UPGRADES (EXTRA PRICE)
- Landscaping and additional walkways
- Private swimming pool
- Sauna or gym
- Stonework on the house or yard
- Fully furnished “turn-key” options with a designer
- Custom woodwork inside and outside the house
-
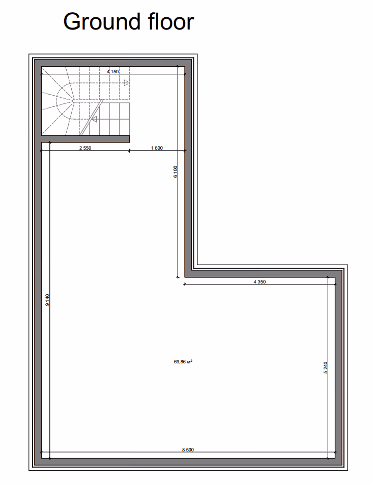
VILLA DESCRIPTION
The villa covers 220 square meters on a 1,000 square meter plot. It includes a living room with kitchen, four bedrooms, three bathrooms, two terraces, and parking space. The kitchen comes fully equipped and is included in the price.
WHY CHOOSE THIS VILLA
This villa is perfect for personal living or short-term rental. With Montenegro’s growing rental market, it offers a strong investment opportunity with potential for high returns.
PAYMENT PLAN
- 10% reservation
- 20% upon signing the purchase contract
- 30% after completion of groundwork and concrete structure
- 30% when construction is complete
- 10% upon registration of ownership
-
ABOUT KOTOR AND THE BAY OF KOTOR
The Bay of Kotor has a rich history and cultural heritage, influenced by ancient civilizations and the Republic of Venice. Kotor remains one of the Mediterranean’s most charming cities, with historical villas along the coast.
Local cuisine, based on traditional Mediterranean recipes, features fresh fish, seafood, olive oil, garlic, almonds, and vegetables, reflecting a high quality of life. The culture comes alive through festivals, events, and the Mediterranean lifestyle of the locals.
Get in touch with us today
Donji bulevar bb
Hotel Bracera
81310 Budva
Montenegro




.webp)



.avif)





.avif)
.avif)
.avif)

.avif)

.avif)
.avif)
.avif)
.avif)
.avif)
.avif)
.avif)
.avif)




